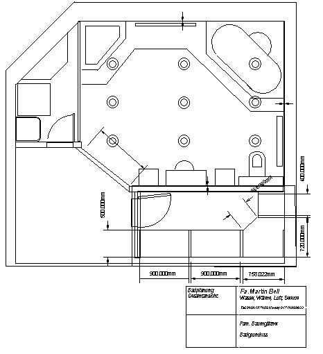
Am Anfang steht natürlich die perfekte Planung.

So entsteht z.B. aus einem ehemaligen Schlafzimmer ein Bad, ein begehbarer Kleiderschrank und ein Haushaltsraum. Meine kleine Bildergallerie erlaubt Ihnen kurz mir bei meiner Arbeit über die Schulter zu sehen:









